Основные характеристики
| Общая площадь | 134 м² |
| Спален | |
| Санузлов | |
| Этажей | 1 |
| Ширина | 12.5 м |
| Длина | 10.67 м |
| Высота от земли до конька | 7.3 м |
| Материал стен | Каркас из дерева |
Гараж- На 3 машины
| - Расположение гаража | Отдельностоящий |
| - Въезд в гараж | Фронтальный |
| - Для скутеров/квадроциклов | Доп. место в гараже |
Опции
| Балкон | - |
| Баня/сауна | - |
| Барбекю | - |
| Бассейн / Купель | - |
| Бильярд | - |
| Второй свет | - |
| Домашний кинотеатр | - |
| Доступный для инвалидов | - |
| Застеклённая веранда | - |
| Зимний сад/Оранжерея | - |
| Кабинет | - |
| Камин | - |
| Кладовая при кухне | - |
| Лифт | - |
| Мансарда | - |
| Мастер-спальня | - |
| Открытая терраса | - |
| Панорамные окна | - |
| Плоская крыша | - |
| Постирочная | - |
| Солнечная палуба | - |
| Угловой (Г-обр.) проект | - |
| Цокольный этаж | - |
| Эксплуатируемая кровля | - |
| Основной стиль проекта | Скандинавский |
| Проект ещё можно отнести к следующим стилям: | Барнхауз |
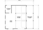
Посмотрите размеры комнат и высоту потолков
1 Этаж
| Гараж | 51 м² |
| Мастерская | 40 м² |
| Техническое помещение | 10 м² |
| Общее пространство | 33 м² |
| Высота потолков | 255 см |
Другая информация об этом плане
Подходящий большого участка гараж на 3 машины с мастерской имеет внешний вид в стиле сарая и множество дополнительных удобств. Три двери открываются в гараж площадью 51 м2 с 40 м2 пространства для мастерской за ним, идеально подходящего для семейного мастера на все руки. Обратите внимание на входные двери с левой стороны, которые обеспечивают легкий доступ к мастерской и гаражу. Для владельцев лодок/мотоциклов и пр. левый и центральный гаражные отсеки достаточно глубоки, чтобы разместить лодку и прицеп, если вы готовы уступить место для мастерской в задней части. Обратите внимание на техническое помещение в углу (10м2) с выходом на улицу. Это удобное расположение хорошо подходит для доступа к газонным и садовым инструментам. Это многоцелевая пристройка понравится широкому кругу покупателей.
Пожаловаться на этот проект
Архитектурный проект №008G-0006
Не является офертой.