Основные характеристики
| Общая площадь | 188.08 м² |
| Спален | 3 |
| Санузлов | 3 |
| Этажей | 2 |
| Ширина | 17.74 м |
| Длина | 12.8 м |
| Высота от земли до конька | 9.72 м |
| Материал стен | Кирпич |
Гараж- На 2 машины
| - Расположение гаража | Пристроенный |
| - Въезд в гараж | Боковой |
| - Для скутеров/квадроциклов | - |
Опции
| Балкон | - |
| Баня/сауна | - |
| Барбекю | - |
| Бассейн / Купель | - |
| Бильярд | - |
| Второй свет | - |
| Домашний кинотеатр | - |
| Доступный для инвалидов | - |
| Застеклённая веранда | - |
| Зимний сад/Оранжерея | - |
| Кабинет | на 1 этаже |
| Камин | Да |
| Кладовая при кухне | - |
| Лифт | - |
| Мансарда | - |
| Мастер-спальня | На 2м этаже |
| Открытая терраса | Да |
| Панорамные окна | - |
| Плоская крыша | - |
| Постирочная | - |
| Солнечная палуба | - |
| Угловой (Г-обр.) проект | - |
| Цокольный этаж | - |
| Эксплуатируемая кровля | - |
| Основной стиль проекта | Английский |
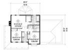
Посмотрите размеры комнат и высоту потолков
1 Этаж
| Гараж | 41.92 м² |
| Прихожая | 2.8 м² |
| Столовая | 11.16 м² |
| Кабинет | 10.22 м² |
| Гостиная | 19.61 м² |
| Кухня | 9.65 м² |
| Туалет | 1.8 м² |
| место для завтраков | 11.12 м² |
| Терраса | 18 м² |
| Высота потолков | 230 см |
2 Этаж
| Холл | 6 м² |
| Спальня хозяев | 18.1 м² |
| Гардеробная | 3 м² |
| Ванная комната | 6.7 м² |
| Спальня | 11.04 м² |
| Спальня | 11.16 м² |
| Ванная комната | 5.8 м² |
| Высота потолков | 255 см |
Другая информация об этом плане
Прекрасный дом для большой семьи. В доме имеется гараж на 2 машины, камин в гостиной с эркером и большими окнами, просторная терраса. Столовая по вашему желанию может стать дополнительной спальной на первом этаже для пожилых членов семьи.
Пожаловаться на этот проект
Архитектурный проект №072-011
Не является офертой.