Пишите если вас что то интересует, или для обратной связи!

Одноэтажный дом из клееного бруса c террасой с тремя спальнями L-142

Нагорская Лесная Компания

Вид

Детали

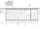
Планировка

Площадь

142 м²

Спальни

3

Санузлов

2

Этажи

1

Основные характеристики

Общая площадь142 м²
Спален3
Санузлов2
Этажей1
Ширина11.3 м
Длина10.5 м
Материал стенКлееный брус

Гараж | Навес- отсутствует

- Расположение гаража-
- Въезд в гараж-
- Для скутеров/квадроциклов-

Опции

Балкон-
Баня/сауна-
Барбекю-
Бассейн / Купель-
Бильярд-
Второй свет-
Домашний кинотеатр-
Доступный для инвалидов-
Застеклённая веранда-
Зимний сад/Оранжерея-
Кабинет-
Камин-
Кладовая при кухне-
Лифт-
Мансарда-
Мастер-спальня-
Открытая террасаДа
Панорамные окна-
Плоская крыша-
Постирочная-
Солнечная палуба-
Угловой (Г-обр.) проект-
Цокольный этаж-
Эксплуатируемая кровля-
Основной стиль проектаСкандинавский
Проект ещё можно отнести к следующим стилям:Канадский
Финский

Планировка

M-19 план

Пожаловаться на этот проект



Архитектурный проект №M-19

Не является офертой.