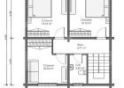
Основные характеристики
| Общая площадь | 162 м² |
| Спален | 4 |
| Санузлов | 2 |
| Этажей | 2 |
| Ширина | 10 м |
| Длина | 14 м |
| Материал стен | Клееный брус |
Гараж | Навес- отсутствует
| - Расположение гаража | - |
| - Въезд в гараж | - |
| - Для скутеров/квадроциклов | - |
Опции
| Балкон | - |
| Баня/сауна | - |
| Барбекю | - |
| Бассейн / Купель | - |
| Бильярд | - |
| Второй свет | - |
| Домашний кинотеатр | - |
| Доступный для инвалидов | - |
| Застеклённая веранда | Да |
| Зимний сад/Оранжерея | - |
| Кабинет | - |
| Камин | - |
| Кладовая при кухне | - |
| Лифт | - |
| Мастер-спальня | - |
| Открытая терраса | Да |
| Постирочная | - |
| Солнечная палуба | - |
| Цокольный этаж | - |
| Эксплуатируемая кровля | - |
| Основной стиль проекта | Финский |
| Проект ещё можно отнести к следующим стилям: | Скандинавский |
| Канадский |
Пожаловаться на этот проект
Архитектурный проект №D070-2
Не является офертой.