Проект № СБ-116 МЕНОРКА
Небольшой одноэтажный газобетонный домик шириной 9 метров, план без внутренних стен
ИНВАПОЛИС
Основные характеристики
| Общая площадь | 116 м² |
| Спален | 3 |
| Санузлов | 2 |
| Этажей | 1 |
| Ширина | 9 м |
| Длина | 18 м |
| Материал стен | Кирпич |
Гараж | Навес- отсутствует
| - Расположение гаража | - |
| - Въезд в гараж | - |
| - Для скутеров/квадроциклов | - |
Опции
| Балкон | - |
| Баня/сауна | - |
| Барбекю | - |
| Бассейн / Купель | - |
| Бильярд | - |
| Второй свет | - |
| Домашний кинотеатр | - |
| Доступный для инвалидов | - |
| Застеклённая веранда | - |
| Зимний сад/Оранжерея | - |
| Кабинет | - |
| Камин | Да |
| Кладовая при кухне | - |
| Лифт | - |
| Открытая терраса | Да |
| Постирочная | - |
| Солнечная палуба | - |
| Спальня хозяев | На 1м этаже |
| Цокольный этаж | - |
| Эксплуатируемая кровля | - |
| Основной стиль проекта | Современный европейский |
Другая информация об этом плане
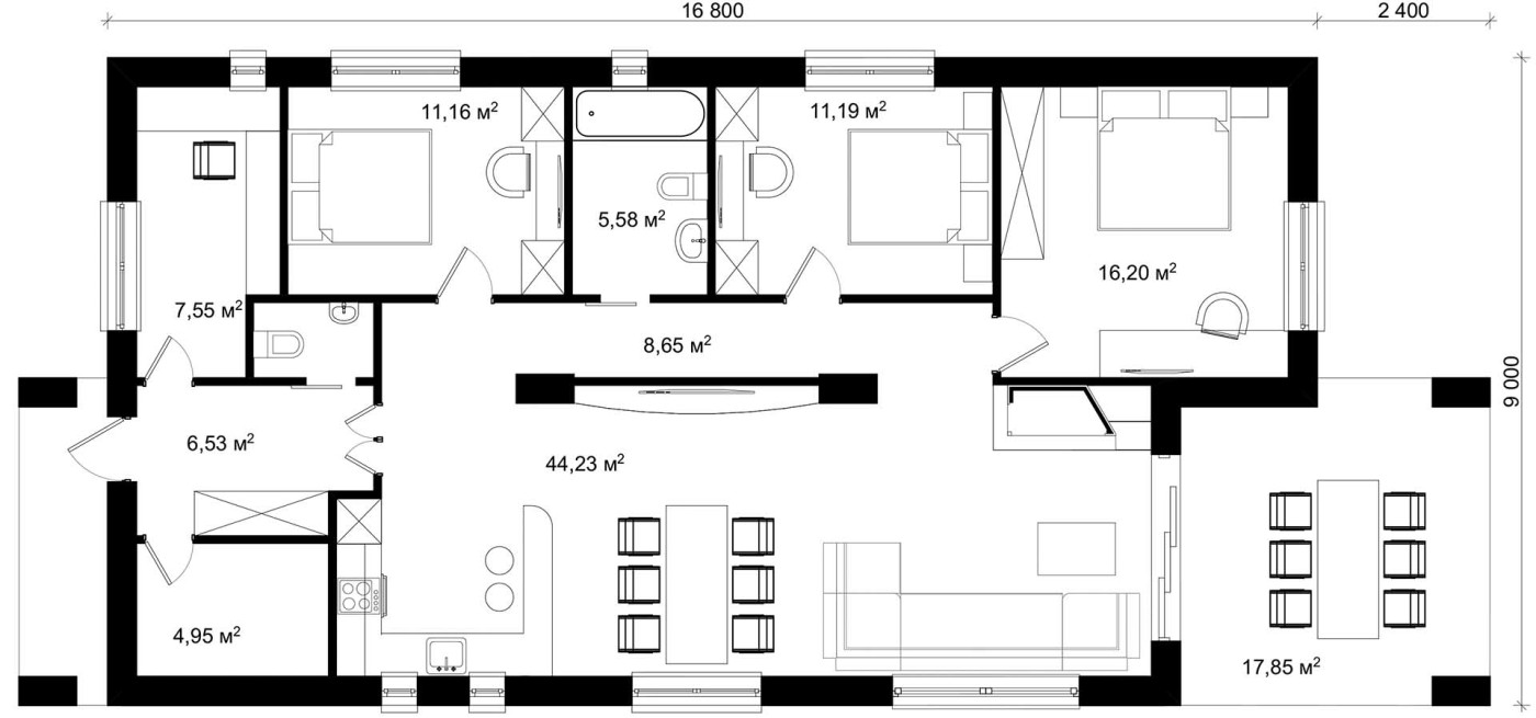
МЕНОРКА - проект современного одноэтажного дома шириной 9 метров, с удобной планировкой и лаконичной архитектурой.
Особенность плана этого дома - деление на две параллельных удлиненных части. Слева - приватная зона, здесь скомпонованы личные комнаты и санузлы. Правая полоса - зона дневного пребывания - гостиная, обеденная и кухонная зоны с открытой верандой. Несмотря на небольшую ширину постройки - всего 9 метров, внутри не создаётся ощущения тесноты.
Передняя часть дома, ориентированная на дорогу - хозяйственная (котельная и кладовка). Она служит своеобразным буфером между шумной улицей и жилой частью. Кладовку 4,95 можно не отделять перегородкой, тогда будет большая прихожая. Кроме базового плана, можно выполнить ещё довольно много вариантов планировок.
Комплект готового проекта этого дома содержит два раздела - паспорт (эскизный проект) для согласования в органах контроля за строительством, и строительно – конструктивный раздел (рабочая документация) для строительства «коробки»
Пожаловаться на этот проект
Не является офертой.